近断层速度脉冲型地震动纵向输入下综合管廊振动台试验

Shaking table test on utility tunnel under longitudinal near-fault velocity pulse ground motion

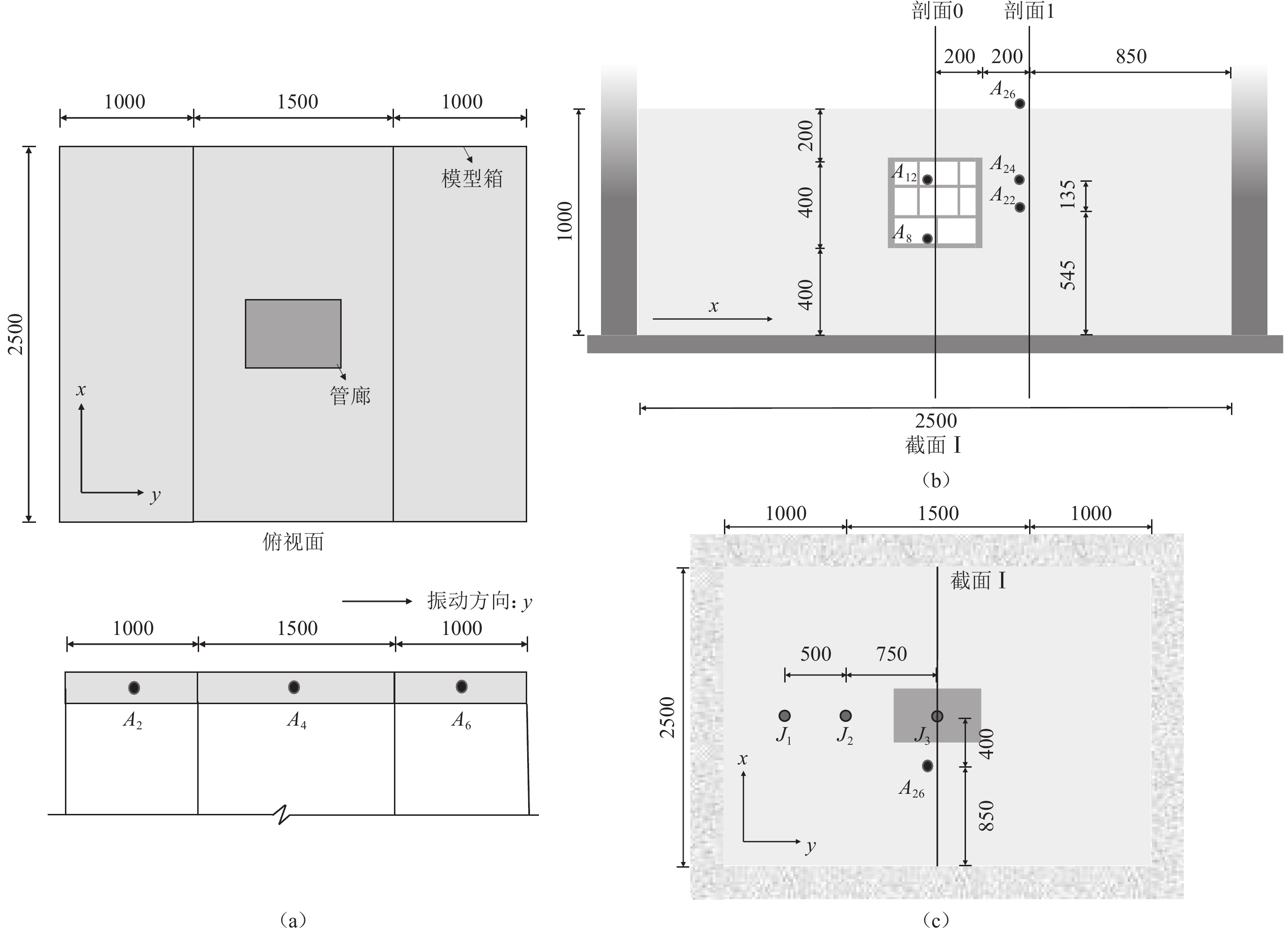
  • 摘要: 基于振动台试验,探讨了速度脉冲对综合管廊动力响应的影响,重点阐明了地震动速度脉冲特性如何影响综合管廊和周围土壤的地震行为。选取具有速度脉冲的实际地震动记录和合成的与实际地震动记录具有相同反应谱的无速度脉冲地震动时程,同时将其加速度幅值分别调整为0.10g,0.20g,0.30g作为输入,设计并开展了地震动纵向输入下的综合管廊振动台试验。基于试验数据分析了场地土体的地震反应变化规律、综合管廊结构的地震响应特征和土-结构相互作用效应。研究结果表明:① 土体在连续试验加载下结构发生变化,其固有频率随加载强度的增加而逐渐降低,阻尼比呈现先减后增趋势;速度脉冲会显著增大土体位移和变形,影响土体反应地震动的反应谱和卓越频率,并引起更大的峰值加速度,在地表处尤为突出;② 管廊结构的地震反应特点受地震动速度脉冲特性与幅值的共同影响;速度脉冲型地震动对管廊结构响应增大效应较明显;③ 管廊结构受周围土体约束作用,表现出与周围土体相似的地震反应规律;速度脉冲型地震动引起的土-管廊系统的加速度响应显著高于无脉冲型,在0.30g强度下差异尤为明显。

     

    Abstract:
    With the accelerated development of urban underground infrastructure, utility tunnels have become a critical component of lifeline systems. Ensuring their seismic resilience is essential, particularly in near-fault zones where ground motions often exhibit distinct velocity pulse characteristics. These pulses, characterized by short durations and high amplitudes, can drastically alter the seismic response of buried structures. However, systematic experimental research on how these velocity pulses affect the seismic behavior of shallow-buried, highstiffness utility tunnels is still scarce. This study addresses this gap by conducting a series of shaking table tests with longitudinal input motions to investigate the dynamic responses of a utility tunnel-soil system under velocity pulse-type and non-pulse-type ground motions.
    The experiments were carried out on a shaking table array consisting of nine sub-tables. A 1/30 scaled model of the utility tunnel, made of organic glass due to its favorable mechanical similarity to the prototype, was carefully embedded within model clay soil. Actual near-fault ground motion records with velocity pulses and synthetic non-pulse ground motions whose response spectra are matched to relevant standards were employed as inputs. The peak ground acceleration (PGA) was scaled to three levels: 0.10g, 0.20g, and 0.30g. Accelerometers and laser displacement sensors were installed at various depths and structural levels to capture dynamic responses including acceleration, displacement, and frequency content.
    The main findings are summarized as follows: ① Velocity pulse motions significantly amplified the seismic responses of the soil, particularly near the surface. These included greater peak accelerations and displacements compared to non-pulse velocity inputs. As the input intensity increased, the predominant frequency of the soil decreased, indicating stiffness degradation and energy redistribution caused by pulse effects. ② The structural response of the utility tunnel was also strongly affected by pulse characteristics. Acceleration amplification factors increased markedly at the upper levels of the structure under pulse-type ground motions, revealing enhanced vertical energy transmission. ③ The soil and structure exhibited synchronized dynamic behavior, particularly in terms of predominant frequency and spectral shape. However, the upper structural levels, due to reduced confinement, displayed more pronounced responses, indicating the emergence of free-vibration characteristics and reduced soil-structure constraint.
    This study systematically examines the amplification mechanism induced by near-fault velocity pulse ground motions on utility tunnels. It reveals the interplay between input motion characteristics, structural geometry, and soil-structure interaction under strong ground motion scenarios. The results provide valuable experimental evidence.

     

/

返回文章
返回